Dialogas gerėjo
Apie tai paskutinėmis 2017 m. dienomis kalbėta ir Seime Vyriausybės valandoje.
Seimo narys Gintaras Vaičekauskas uždavė klausimą, ar miestas ir uostas pradėjo žiūrėti į vieną pusę, ar rado bendrą kalbą, rengiant bendruosius planus? Kaip žinia, uostas ir miestas rengia atskirus bendruosius planus, kur požiūris į išorinį uostą skyrėsi.
Susisiekimo ministro Roko Masiulio nuomone, pastaruosius pusę metų dialogas tarp uosto ir Klaipėdos miesto stiprėjo ir gerėjo.
„Aš pozityviai žiūriu, manau, ką mes ir anksčiau deklaravome, kad projektas bus naudingas tiek miestui, tiek uostui, tiek visai valstybei, nes kito kelio į jūrą mes neturime – tik per Klaipėdą. Mes labai pozityviai žiūrime ir su optimizmu laukiame. O kad miestui tai atneš neabejotiną naudą, yra akivaizdu“, - svarstė R.Masiulis.
Uostas Būtingėje – kodėl nerealu?
Šiemet Klaipėdos valstybinio jūrų uosto direkcija turės atnaujinti ir 2011 m. parengtą studiją dėl išorinio uosto statybos vietų Lietuvos jūros pakrantėje.
Tokios studijos atnaujinimo konkursas jau paskelbtas. To reikalauja išorinio uosto dokumentų derinimo eiga.
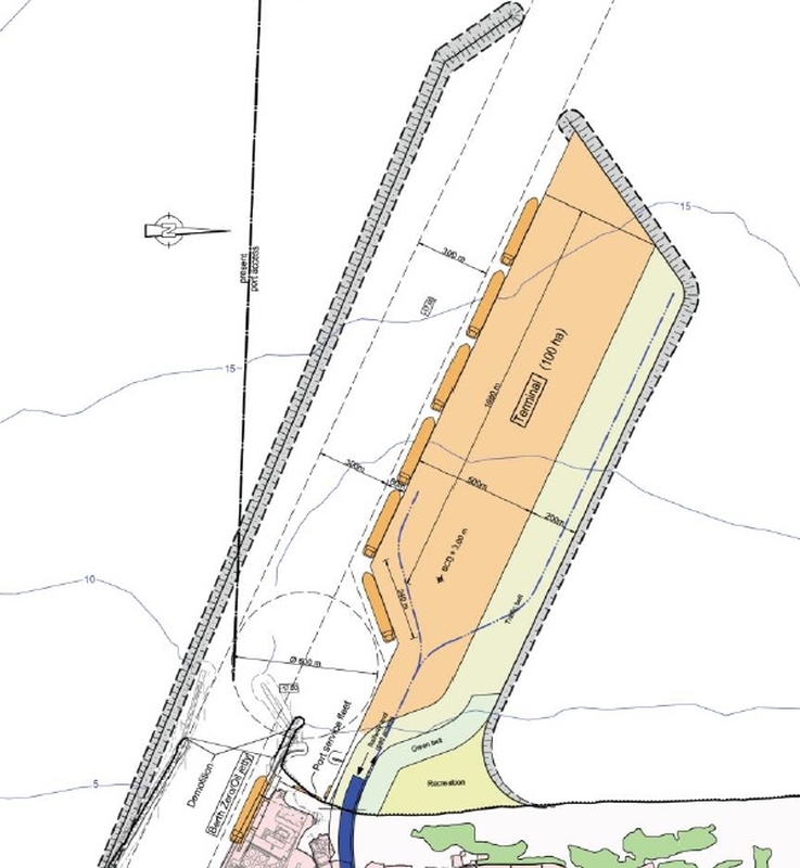
Išorinio uosto statybos alternatyvų Baltijos jūros Lietuvos pakrantėje nėra daug. Realiausiai vieta tokiam uostui statyti yra Klaipėdoje ties Melnrage.
2011 m. kaip galima vieta buvo pristatinėjamas ir išorinis uostas ties Būtinge. Dabar jau net ir didžiausiems to uosto optimistams aišku, kad Būtingėje nerealu pastatyti išorinį uostą.
Yra kelios priežastys. Pirmą, per toli nuo kranto yra giliavandeniam uosto įplaukai reikalingas 18 m natūralus gylis. Jis už 5 kilometrų nuo kranto. Antra, šalia yra Latvijos siena už kurios prasideda šios šalies jūrinės aplinkos Papės parkas – zona „Natūra 2000“. Išorinio uosto projekto derinimas su Latvija būtų neįmanomas. Ypač pagal ES principus, kai net išardytas geležinkelis į kaimyninę šalį tampa milijoninėmis baudomis. Latviai jau pasisakė ir prieš mažesnio iki 6–8 metrų gylio Šventosios uosto plėtrą. Trečia, į Būtingę nėra kelių ir geležinkelių infrastruktūros.
Aplinkosaugininkai vertino, kad uosto statybos žala jūroje ties Būtinge aplinkai būtų gerokai didesnė nei Klaipėdoje.
Jau buvo aiški išvada
Pagal 2011 m. išorinio uosto statybos studiją darbai jau turėjo prasidėti 2016 m. ir baigtis 2020 m.
Būtingėje tokiam uostui būtų reikalingas gerokai ilgesnis laivybos kanalas, ilgesni molai
Būtingės išorinio uosto statyba pagal 2011 m. vertinimus būtų kainavusi 4,2 mlrd. litų, o Melnragės – apie 3,8 mlrd. litų.
Bet čia menkai buvo vertinta tai, kiek kainuotų papildomai nutiesti privažiavimo kelius, vandens, elektros linijas. Į Būtingę vien geležinkelių būtų tekę nutiesti apie 50 kilometrų, įrengti naujas geležinkelio stotis Būtingėje ir Darbėnuose.
Įvertinus daugelį aspektų 68 proc. vertintojų simpatijos buvo skirtos Melnragės išorinio uosto variantui, 60 proc. – Būtingės variantui. Tačiau jau 2011 m. buvo pateikta aiški išvada: „Būtingės teritorija galėtų būti atsarginė, jei nepavyktų įgyvendinti plėtros varianto Melnragėje“.
Bet metai bėgo, o nė žingsnio nepajudėta. Išorinio uosto vizija užstrigo ties klaidingu dalies politikų noru statyti jį šalia Latvijos sienos. Ne tik didžiulis išorinis uostas Būtingėje, bet ir mažylio Šventosios uosto atstatymas taip ir liko tik svajonėse.



Naujausi komentarai